Двустаен апартамент в нов проект в м-т Манастирски рид

град Варна , местност Манастирски рид
Оферта №  PL-4464
105 000 €
205 362.15 лв
Площ: 59 м2 Цена на м2: 1 780 € Цена на м2: 3 481.38 лв
Свържете се с брокер Пламена Иванова Пламена Иванова +359 882 909 873 Виж всички оферти на този брокер
Изпратете запитване и ние ще се свържем с Вас
Апартамент по БДС
ТОПИММО представя нов проект заобиколен от зеленина и простор, с невероятна гледка към морето в местност Манстирски рид и курортен комплекс Слънчев ден.

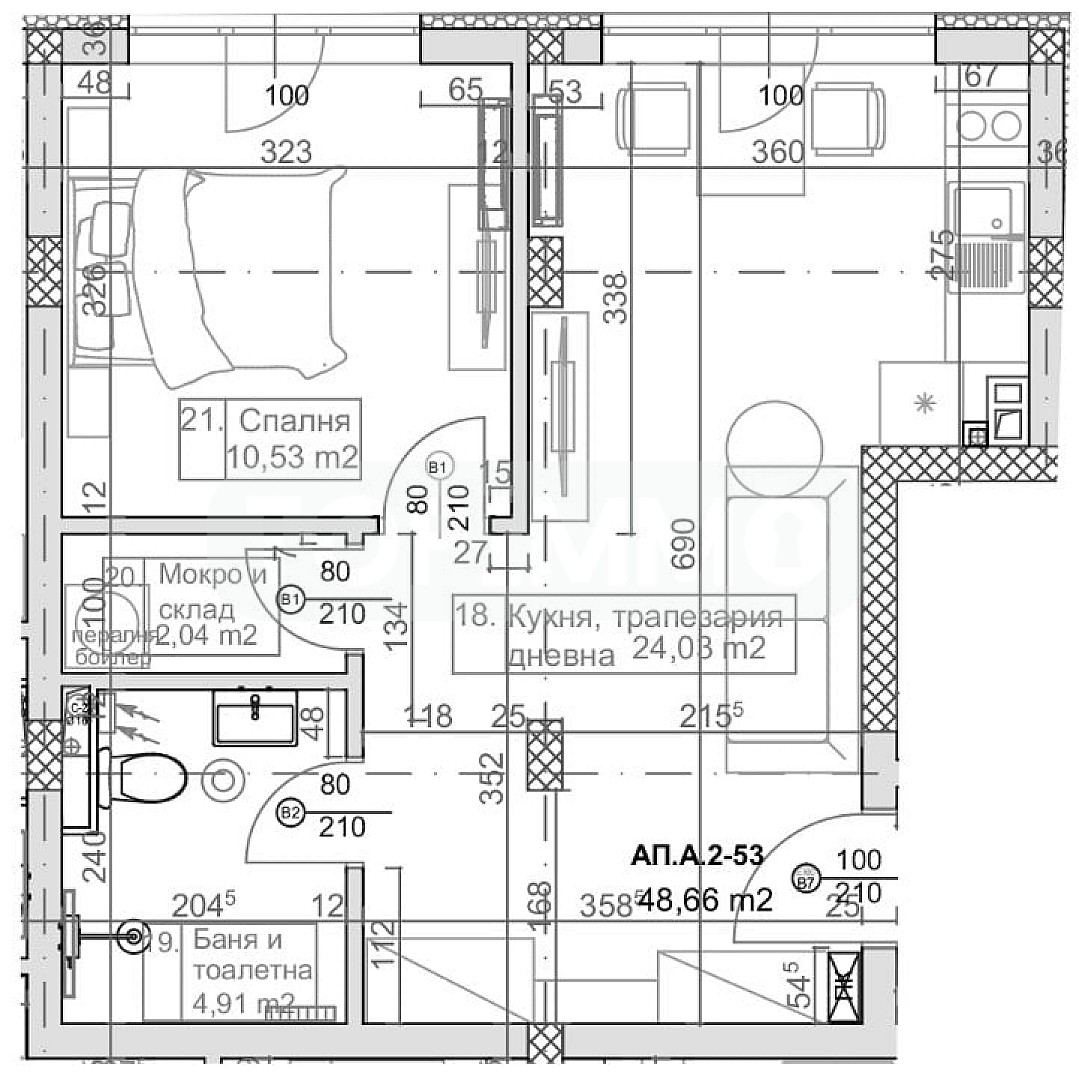
Апартаментът се намира на шести етаж от седем с асансьор, със западно изложение и следното разпределение: антре, всекидневна с кухненски бокс 24 кв.м., спалня 10.53 кв.м., санитарен възел и перално помещение. Имотът е подходящ както за лично ползване, така и с цел инвестиция за отдаването му под наем за нощувки.

Комплексът ще предостави на бъдещите собственици спокойна и чиста среда сред природата, същевременно в близост до спирка на градски транспорт и бърза пътна връзка към града. 

Модерна архитектура, функционално разпределени помещения, алеи за разходки, детски кътове, зона за спорт и отдих-мястото, където ще се радвате на съвременен начин на живот в близост до природата, без да губите връзка с динамиката в града. 

Комплексът ще се състои от две сгради с общо 64 апартамента-едностайни, двустайни, тристайни и четиристайни, също така паркоместа и гаражи. 

Обадете ни се, за да Ви представим най-практичния и комфортен имот според Вашите критерии!


Характеристики на имота
Тип имот
2-стаен
Площ
59 м2
Тип строителство
тухла
Година на строителство
2027 г
Състояние
в строеж, БДС
Етаж
6 от 7
Спални
1 бр
Обзавеждане
необзаведен

Локация
град Варна , местност Манастирски рид
Показано е приблизителното местоположение на имота. За да научите точната локация и повече информация, моля свържете се с брокера за тази оферта.

Запитване
Попълнете контактната форма и ние ще се свържем с Вас в най-кратък срок!
105 000 €
205 362.15 лв
Площ: 59 м2 Цена на м2: 1 780 € Цена на м2: 3 481.38 лв
Свържете се с брокер Пламена Иванова Пламена Иванова +359 882 909 873 Виж всички оферти на този брокер
Изпратете запитване и ние ще се свържем с Вас

Подобни имоти

За продажба
Двустаен апартамент в нова сград в кв. Възраждане 4
Двустаен апартамент в нова сград в кв. Възраждане 4 гр. Варна , кв. Възраждане 4
61 м2 99 200 €
194 018.34 лв
За продажба
Кокетни двуетажни сгради в комплекс в местност Ален Мак
НОВО СТРОИТЕЛСТВО
Кокетни двуетажни сгради в комплекс в местност Ален Мак гр. Варна , м-т Ален мак
40 м2 от 50 213 €
98 208.09 лв
За продажба
Апартаменти в новострояща се сграда в Гръцката махала
НОВО СТРОИТЕЛСТВО
Апартаменти в новострояща се сграда в Гръцката махала гр. Варна , кв. Гръцка махала
45 м2 от 149 500 €
292 396.59 лв
За продажба
Двустаен апартамент в курорт Св. Св. Константин и Елена
Двустаен апартамент в курорт Св. Св. Константин и Елена гр. Варна , к.к. Св. Св. Константин и Елена
76 м2 196 840 €
384 985.58 лв