Тристаен апартамент в нов проект в м-т Манастирски рид

град Варна , местност Манастирски рид
Оферта №  PL-4468
190 000 €
371 607.70 лв
Площ: 110 м2 Цена на м2: 1 727 € Цена на м2: 3 377.72 лв
Свържете се с брокер Пламена Иванова Пламена Иванова +359 882 909 873 Виж всички оферти на този брокер
Изпратете запитване и ние ще се свържем с Вас
Апартамент по БДС
ТОПИММО представя нов проект заобиколен от зеленина и простор, с невероятна гледка към морето в местност Манстирски рид и курортен комплекс Слънчев ден.

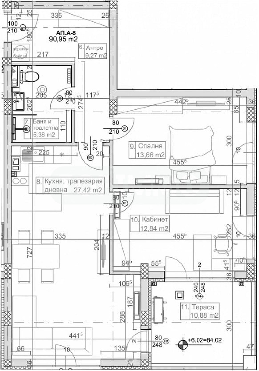
Апартаментът се намира на втори етаж от седем с асансьор, с югоизточно изложение и следното разпределение: Г-образен коридор, всекидневна с кухненски бокс 27.42 кв.м., спалня 12.84 кв.м., втора спалня 13.66 кв.м., тераса 11 кв.м., санитарен възел. Имотът е подходящ както за лично ползване, така и с цел инвестиция за отдаването му под наем за нощувки.

Комплексът ще предостави на бъдещите собственици спокойна и чиста среда сред природата, същевременно в близост до спирка на градски транспорт и бърза пътна връзка към града. 

Модерна архитектура, функционално разпределени помещения, алеи за разходки, детски кътове, зона за спорт и отдих-мястото, където ще се радвате на съвременен начин на живот в близост до природата, без да губите връзка с динамиката в града. 

Комплексът ще се състои от две сгради с общо 64 апартамента-едностайни, двустайни, тристайни и четиристайни, също така паркоместа и гаражи. 

Обадете ни се, за да Ви представим най-практичния и комфортен имот според Вашите критерии!


Характеристики на имота
Тип имот
3-стаен
Площ
110 м2
Тип строителство
тухла
Година на строителство
2027 г
Състояние
в строеж, БДС
Етаж
2 от 7
Спални
2 бр
Обзавеждане
необзаведен
Изложение
югоизток

Локация
град Варна , местност Манастирски рид
Показано е приблизителното местоположение на имота. За да научите точната локация и повече информация, моля свържете се с брокера за тази оферта.

Запитване
Попълнете контактната форма и ние ще се свържем с Вас в най-кратък срок!
190 000 €
371 607.70 лв
Площ: 110 м2 Цена на м2: 1 727 € Цена на м2: 3 377.72 лв
Свържете се с брокер Пламена Иванова Пламена Иванова +359 882 909 873 Виж всички оферти на този брокер
Изпратете запитване и ние ще се свържем с Вас

Подобни имоти

За продажба
Тристаен апартамент в нов комплекс в м-т Ален Мак
Тристаен апартамент в нов комплекс в м-т Ален Мак гр. Варна , м-т Ален мак
96 м2 149 000 €
291 418.67 лв
За продажба
Луксозен тристаен апартамент в местност Евксиноград
ЛУКСОЗЕН ИМОТ
Луксозен тристаен апартамент в местност Евксиноград гр. Варна , м-т Евксиноград
180 м2 325 000 €
635 644.75 лв
За продажба
Тристаен апартамент в кв. Бриз
Тристаен апартамент в кв. Бриз гр. Варна , кв. Бриз
139 м2 330 000 €
645 423.90 лв
За продажба
Тристаен апартамент в м-т Ален Мак
Тристаен апартамент в м-т Ален Мак гр. Варна , м-т Ален мак
72 м2 154 400 €
301 980.15 лв