Четиристаен апартамент в м-т Манастирски рид

град Варна , местност Манастирски рид
Оферта №  PL-4466
360 000 €
704 098.80 лв
Площ: 203 м2 Цена на м2: 1 773 € Цена на м2: 3 467.69 лв
Свържете се с брокер Пламена Иванова Пламена Иванова +359 882 909 873 Виж всички оферти на този брокер
Изпратете запитване и ние ще се свържем с Вас
Апартамент по БДС
ТОПИММО представя нов проект заобиколен от зеленина и простор, с невероятна гледка към морето в местност Манстирски рид и курортен комплекс Слънчев ден.

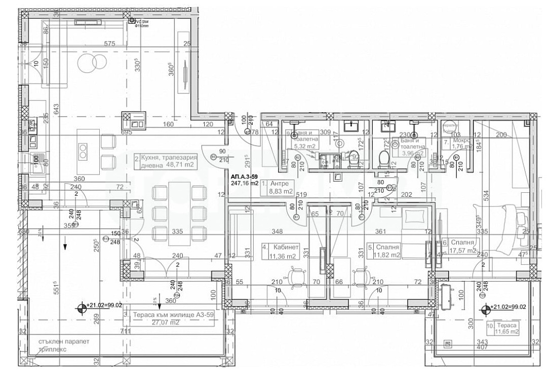
Апартаментът се намира на седми етаж, с югозападно изложение и следното разпределение: Г-образен коридор, просторна всекидневна с кухненски бокс 48.71 кв.м. с излаз на тераса 27 кв.м. с невероятна панорама към морето, спалня 11.36 кв.м., втора спалня 11.82 кв.м., трета спалня 17.57 кв.м. със собствен санитарен възел и помещение подходящо за гардеробна, с излаз на втора тераса, втори санитарен възел.

Комплексът ще предостави на бъдещите собственици спокойна и чиста среда сред природата, същевременно в близост до спирка на градски транспорт и бърза пътна връзка към града. 

Модерна архитектура, функционално разпределени помещения, алеи за разходки, детски кътове, зона за спорт и отдих-мястото, където ще се радвате на съвременен начин на живот в близост до природата, без да губите връзка с динамиката в града. 

Комплексът ще се състои от две сгради с общо 64 апартамента-едностайни, двустайни, тристайни и четиристайни, също така паркоместа и гаражи. 

Обадете ни се, за да Ви представим най-практичния и комфортен имот според Вашите критерии!

 


Характеристики на имота
Тип имот
4-стаен
Площ
203 м2
Тип строителство
тухла
Година на строителство
2027 г
Състояние
в строеж, БДС
Етаж
7 от 7
Спални
3 бр
Обзавеждане
необзаведен
Изложение
югозапад

Локация
град Варна , местност Манастирски рид
Показано е приблизителното местоположение на имота. За да научите точната локация и повече информация, моля свържете се с брокера за тази оферта.

Запитване
Попълнете контактната форма и ние ще се свържем с Вас в най-кратък срок!
360 000 €
704 098.80 лв
Площ: 203 м2 Цена на м2: 1 773 € Цена на м2: 3 467.69 лв
Свържете се с брокер Пламена Иванова Пламена Иванова +359 882 909 873 Виж всички оферти на този брокер
Изпратете запитване и ние ще се свържем с Вас

Подобни имоти

За продажба
Четиристаен апартамент в центъра на Варна
Четиристаен апартамент в центъра на Варна гр. Варна , кв. Център
120 м2 500 000 €
977 915.00 лв
За продажба
Четиристаен апартамент в Цветния квартал
Четиристаен апартамент в Цветния квартал гр. Варна , кв. Цветен квартал
82 м2 194 000 €
379 431.02 лв
За продажба
Етаж от къща в района на Икономически университет
Етаж от къща в района на Икономически университет гр. Варна , кв. Червен площад
147 м2 319 000 €
623 909.77 лв