Едностаен апартамент в нов проект в м-т Манастирски рид

град Варна , местност Манастирски рид
Оферта №  PL-4463
81 000 €
158 422.23 лв
Площ: 45 м2 Цена на м2: 1 800 € Цена на м2: 3 520.49 лв
Свържете се с брокер Пламена Иванова Пламена Иванова +359 882 909 873 Виж всички оферти на този брокер
Изпратете запитване и ние ще се свържем с Вас
Апартамент в комплекс с морска панорама
ТОПИММО представя нов проект заобиколен от зеленина и простор, с невероятна гледка към морето в района на местност Манастирски рид и курортен комплекс Слънчев ден.

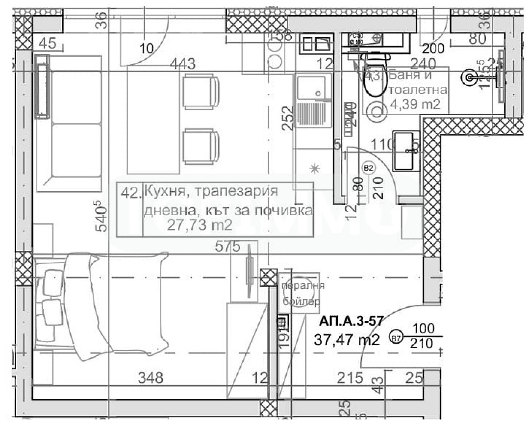
Апартаментът се намира на шести етаж от седем с асансьор, със западно изложение и следното разпределение: антре, стая 27.73 кв.м., която може да се обособи като всекидневна с кът за спане, санитарен възел. Имотът е подходящ както за лично ползване, така и с цел инвестиция за отдаването му под наем за нощувки.

Комплексът ще предостави на бъдещите собственици спокойна и чиста среда сред природата, същевременно в близост до спирка на градски транспорт и бърза пътна връзка към града. 

Модерна архитектура, функционално разпределени помещения, алеи за разходки, детски кътове, зона за спорт и отдих-мястото, където ще се радвате на съвременен начин на живот в близост до природата, без да губите връзка с динамиката в града. 

Комплексът ще се състои от две сгради с общо 64 апартамента - едностайни, двустайни, тристайни и четиристайни, също така паркоместа и гаражи. 

Обадете ни се, за да Ви представим най-практичния и комфортен имот според Вашите критерии!


Характеристики на имота
Тип имот
1-стаен, студио
Площ
45 м2
Тип строителство
тухла
Година на строителство
2027 г
Състояние
в строеж, БДС
Етаж
6 от 7
Обзавеждане
необзаведен
Изложение
запад

Локация
град Варна , местност Манастирски рид
Показано е приблизителното местоположение на имота. За да научите точната локация и повече информация, моля свържете се с брокера за тази оферта.

Запитване
Попълнете контактната форма и ние ще се свържем с Вас в най-кратък срок!
81 000 €
158 422.23 лв
Площ: 45 м2 Цена на м2: 1 800 € Цена на м2: 3 520.49 лв
Свържете се с брокер Пламена Иванова Пламена Иванова +359 882 909 873 Виж всички оферти на този брокер
Изпратете запитване и ние ще се свържем с Вас

Подобни имоти

За продажба
Едностаен имот в нова сграда в кв. Възраждане 4
Едностаен имот в нова сграда в кв. Възраждане 4 гр. Варна , кв. Възраждане 4
27 м2 38 900 €
76 081.79 лв
За продажба
Едностаен апартамент в нов жилищен комплекс в Ален Мак
Едностаен апартамент в нов жилищен комплекс в Ален Мак гр. Варна , м-т Ален мак
51 м2 78 500 €
153 532.66 лв
За продажба
Едностаен имот в кв. Конфуто
Едностаен имот в кв. Конфуто гр. Варна , кв. Конфуто
15 м2 37 900 €
74 125.96 лв
За продажба
Едностаен апартамент ново строителство в кв. Погреби
Едностаен апартамент ново строителство в кв. Погреби гр. Варна , кв. Погреби
42 м2 72 000 €
140 819.76 лв