Двустаен апартамент в нов проект в кв. Възраждане 4

град Варна , квартал Възраждане 4
Оферта №  PL-4371
96 000 €
187 759.68 лв
Площ: 68 м2 Цена на м2: 1 412 € Цена на м2: 2 761.63 лв
Свържете се с брокер Пламена Иванова Пламена Иванова +359 882 909 873 Виж всички оферти на този брокер
Изпратете запитване и ние ще се свържем с Вас
Апартамент по БДС
ТОПИММО предлага за продажба апартаменти в нов проект в квартал “Възраждане IV”.  Строителната фирма е с дългогодишен опит в бранша, доказала се във времето с изключителна прецизност в изграждането на висококачествени сгради. 

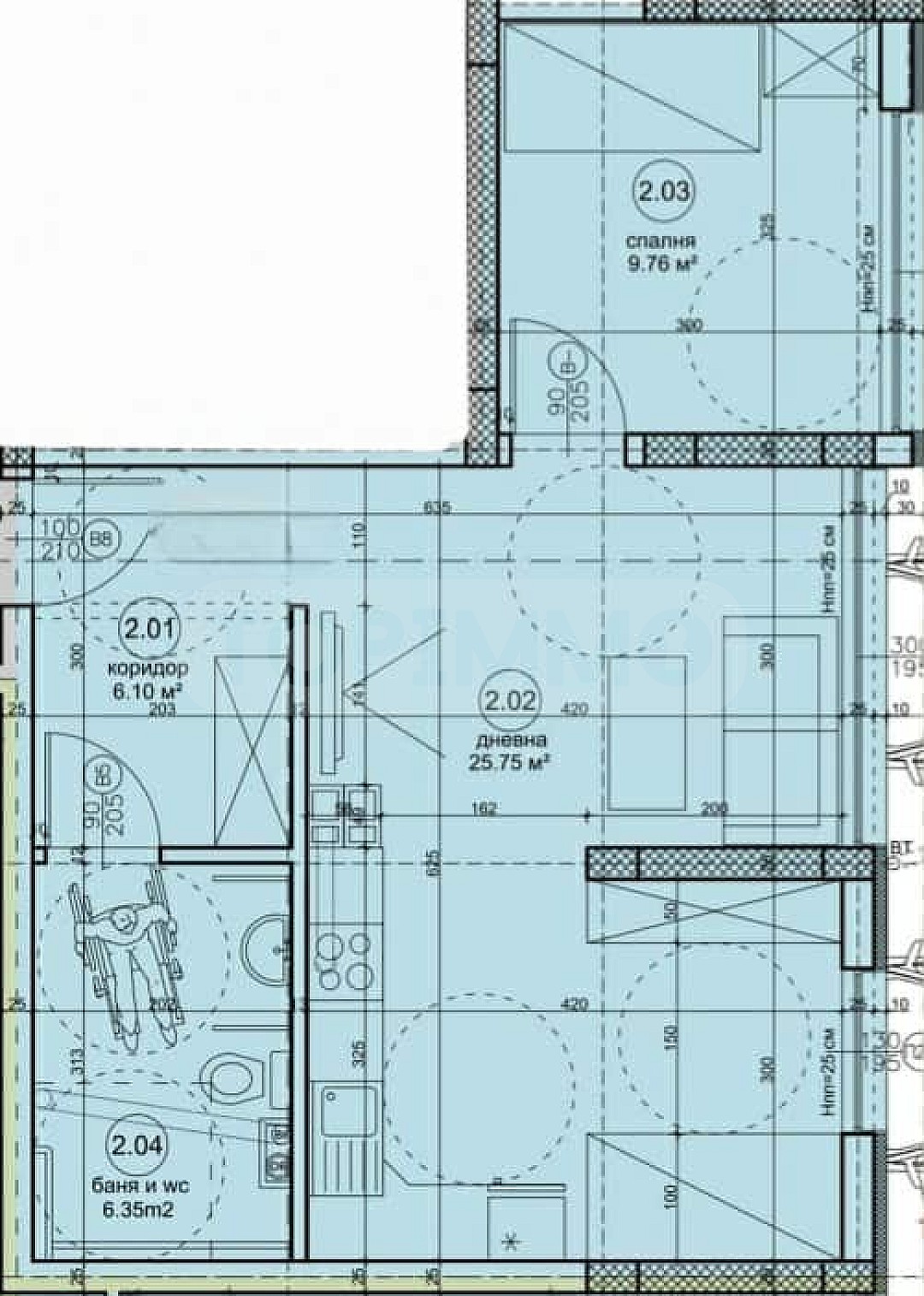
Имотът е тип “двустаен”, разположен на ет. 2 от 13, с източно изложение и следното разпределение: антре, всекидневна с кухн. част 25.75 кв.м., спалня 9.8 кв.м., санитарен възел. 

Апартаментите се издават в състояние по БДС. С възможност за закупуване на подземни, надземни паркоместа и гаражи. Гъвкави схеми на плащане. 

Имотът е подходящ както за лично ползване, така и с цел инвестиция, поради все по-често предпочитаната локация, в близост до “Парк Възраждане” и множество търговски обекти от всякакъв вид.

Можем да организираме оглед в удобно за вас време, свържете се с нас!

Характеристики на имота
Тип имот
2-стаен
Площ
68 м2
Тип строителство
тухла
Година на строителство
2028 г
Състояние
в строеж, БДС
Етаж
2 от 13
Спални
1 бр
Обзавеждане
необзаведен

Локация
град Варна , квартал Възраждане 4
Показано е приблизителното местоположение на имота. За да научите точната локация и повече информация, моля свържете се с брокера за тази оферта.

Запитване
Попълнете контактната форма и ние ще се свържем с Вас в най-кратък срок!
96 000 €
187 759.68 лв
Площ: 68 м2 Цена на м2: 1 412 € Цена на м2: 2 761.63 лв
Свържете се с брокер Пламена Иванова Пламена Иванова +359 882 909 873 Виж всички оферти на този брокер
Изпратете запитване и ние ще се свържем с Вас

Подобни имоти

За продажба
Двустаен апартамент в кв. Трошево
САМО ЗА ЧАСТНИ ЛИЦА
Двустаен апартамент в кв. Трошево гр. Варна , кв. Трошево
67 м2 138 000 €
269 904.54 лв
За продажба
Двустаен апартамент в нов жилищен комплекс в кв. Младост 1
Двустаен апартамент в нов жилищен комплекс в кв. Младост 1 гр. Варна , кв. Младост 1
81 м2 119 900 €
234 504.02 лв
За продажба
Двустаен апартамент на метри от плаж Кабакум
Двустаен апартамент на метри от плаж Кабакум гр. Варна , м-т Ален мак
65 м2 124 300 €
243 109.67 лв
За продажба
Двустаен апартамент в нова сграда в м-т Пчелина
Двустаен апартамент в нова сграда в м-т Пчелина гр. Варна , м-т Пчелина
95 м2 205 990 €
402 881.42 лв